logo_white
Mumbai
  • Pokhran Road 2search-icon
  • Addsearch-icon
    search-icon
    Sorry, no matching results were found

Last updated : Mar 16 2026

Neelkanth Lake View Pokhran Road 2

Pokhran Road 2, Thane

3, 4 BHK

Configuration

₹ 3 Cr

Onwards

1,077 to 1,495 Sq.ft

Carpet Area
Neelkanth Lake View Pokhran Road 2
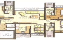
Floor Plans
Street View
Street
Street
Unit Floor Plans
Unit Floor Plans
Amenities
Amenities
Sample Flat Image
Sample Flat Image
Neelkanth Lake View Pokhran Road 2

Overview of Neelkanth Lake View

Number of Storey's

28 Storeys

Configurations

3, 4 BHK

Carpet Area

1,077 to 1,495 Sq.ft

Project Area

2 Acres

Starting Price Range

3 Cr onwards

Construction Status

Ready Possession

Investment Rating

6/10

Livability Rating

6/10

Project Rera Number

street view

Street View of Neelkanth Lake View

Explore the Street View and vibrant surroundings of Neelkanth Lake ViewPark, right from the comfort of your screen.Park,

Pricing & Floor Plans of Neelkanth Lake View, Pokhran Road 2

All
3 BHK
4 BHK
Type Carpet AreaPriceFloorplanRoom sizes
3 BHK1077 Sq.ft₹ 3 Cr[ View Now ]
[ View Now ]
Expand
Floor plan for 3 BHK
zoom
4 BHK1495 Sq.ft₹ 4 Cr[ View Now ]
[ View Now ]
Expand
Floor plan for 4 BHK
zoom
Get The Best Quote
GetcostsheetGet Cost Sheet

Location Map of Neelkanth Lake View

Discover the location of Neelkanth Lake View with seamless connectivity and nearby landmarks.

zoom

About Neelkanth Lake View

Neelkanth Lake View is a luxurious residential project at Pokhran Road 2 that intersects Ghodbunder Road. It is available in 3 & 4 BHK flats that offer unobstructed views of Yeoor Hills and Upvan Lake. The sprawling views ensure a relaxing atmosphere for its residents after a taxing day at work. The locality also has well-maintained widened roads with a footpath garden that is spread across 1km. With this, there will be many lifestyle amenities at Neelkanth Lake View you can savor midst Springs including a Club House, Swimming Pool, Gym, Yoga Room, Kids' Play Area, Multipurpose Room, etc. Neelkanth Lake View is in proximity to prime landmarks including Bethany Hospital (400m), Upvan Lake Garden (900m), Eastern Express Highway (2.1kms), Korum Mall (2.5kms), Singhania School (2.6kms), Salt and Pepper Restaurant and Bar (750m), and Biryani House Family Restaurant (1km) amongst others.

Neelkanth Lake View Amenities

Banquet Hall

Banquet Hall

Club house

Club house

Conference Room

Conference Room

Jogging Track

Jogging Track

Sports Courts

Sports Courts

Kids Play Area

Kids Play Area

Swimming Pool

Swimming Pool

Yoga Zone

Yoga Zone

Gym

Gym

Neelkanth Lake View Facilities

Intercom

Intercom

Lift

Lift

Gas Pipeline

Gas Pipeline

Power Back Up

Power Back Up

Parking

Parking

Security System

Security System

down-brouchure

Download Brochure of Neelkanth Lake View

Your dream home awaits,

Click to download Neelkanth Lake View Brochure.

Connectivity around Neelkanth Lake View

Commute

Bus StopsShivainagar Bus Station - 0.5 km | 3 mins
Railway StationsThane - 7.7 km | 25 mins
Metro StationsCadbury Junction - 2.4 km | 8 mins

Essentials

GroceriesAmbika Supermarket - 0.7 km | 4 mins
BanksAxis Bank - 1.0 km | 4 mins
SchoolsSVPM's Sanskar Public School - 0.4 km | 2 mins

Entertainment

MovieSHRAVAN STUDIOS - 1.6 km | 6 mins
RestaurantsMahesh Lunch Home Thane - 1.6 km | 6 mins
LoungeBombay Duck Family Restaurant and Bar - 1.1 km | 5 mins
map
What's Nearby Neelkanth Lake View,

Explore nearby areas around your dream project

Rating of Neelkanth Lake View

0

(0 Reviews)

  • 5
    star
  • 80
    %
  • 4
    star
  • 70
    %
  • 3
    star
  • 60
    %
  • 2
    star
  • 50
    %
  • 1
    star
  • 40
    %

About Builder - Neelkanth Group

Neelkanth Group
Established In -2006
Total Projects - 11
Established by Tulsi Bhimjyani, Tulsi Bhimjyani Realty is a prestigious land engineer in Mumbai. It was in the past a piece of the Neelkanth Group, which has been in the realty business throughout the previous four decades. Bhimjyani Realty is guided by the way of thinking of offering its clients not what they need, however, what they genuinely merit. The organization has effectively conveyed a few ventures that remain as a declaration to its greatness.
FAQs about Neelkanth Lake View

1. What is the total price of this property?

The price depends on the configuration; please check projects’s Floor Plans & Room Sizing of Neelkanth Lake View

2. Is this Neelkanth Lake View RERA-registered?

Yes, the Neelkanth Lake View is RERA-registered with the number P51700007123.

3. What is the carpet area range of units in Neelkanth Lake View?

The carpet area ranges from 1077 sq.ft. to 1495 sq.ft., depending on the unit type.

4. Is home loan assistance available for this property?

Yes, home loan assistance is available. Please click here

5. What is the location/Address of Neelkanth Lake View?

The project is located on Devdaya Nagar, Pokhran Road 2. The full address of Neelkanth Lake View is Neelkanth Lakeview, Adjoining Neelkanth Heights, Devdaya Nagar, Pokhran Road No. 2, Thane West, Thane, Maharashtra 400610.

6. What is the Pincode of Neelkanth Lake View?

The pincode of Neelkanth Lake View is 400610

7. Can I schedule a site visit?

Yes, you can schedule a site visit by contacting the developer or HomeBazaar.

8. What configurations are available for this project?

The project offers 3, 4 BHK apartments.

9. Who is the builder/developer of Neelkanth Lake View?

The project is developed by Neelkanth Group.

10. Is Neelkanth Lake View earthquake-resistant?

Yes, the buildings are designed to be earthquake-resistant.

Questions & Answers about Neelkanth Lake View

Q: Is there a community hall?

A: Yes
Disclaimer: While Homebazaar.com takes all steps to ensure accuracy of the information provided in this section, please check the same with the developers. Homebazaar.com does not take responsibility for any discrepancies in the information provided.

Price Insights of Pokhran Road 2

201720182019202020212022202320242025Year1201515015180152101525220Price per sqft133501340013350139001745016650229502420024250
  • Rate

Here are some key pointers based on the graph:

1.Location : The graph represents property price insights for Devdaya Nagar, Pokhran Road 2.
2.Timeframe : The data covers the years 2017 and 2025.
3.Price per sqft :
2017: ₹13,350 Sq.ft
2018: ₹13,400 Sq.ft (marginal increase by 1%)
2019: ₹13,350 Sq.ft (slight dip by -1%)
2020: ₹13,900 Sq.ft (increase by 4%)
2021: ₹17,450 Sq.ft (increase by 21%)
2022: ₹16,650 Sq.ft (Decreased by -5%)
2023: ₹22,950 Sq.ft (increase by 28%)
2024: ₹24,200 Sq.ft (increase by 6%)
2025: ₹24,250 Sq.ft (marginal increase by 1%)
4.Trend : The property prices in Devdaya Nagar, Pokhran Road 2 increased by 44.95% over the period 2017 to 2025

About Pokhran Road 2, Mumbai

Renowned for its picturesque surroundings, and excellent connectivity Pokhran Road 2 in Thane offers a delightful living experience for individuals and families alike. This locality boasts a mix of residential options in properties in Thane, ranging from luxurious apartments, spacious villas, and elegant townhouses, ensuring there's something for every discerning buyer. The area is also dotted with numerous parks, gardens, and recreational spaces, making it an ideal choice for nature lovers and fitness enthusiasts. Connectivity is another major advantage of residing on Pokhran Road 2. The locality enjoys seamless connectivity to various parts of Thane and neighbouring areas. The Eastern Express Highway, Ghodbunder Road, and Thane Railway Station are easily accessible, ensuring convenient travel for residents. It has close proximity to Upvan Lake and Yeoor Hills. When it comes to amenities, properties in Pokhran Road 2 leave no stone unturned. The residential complexes here are equipped with state-of-the-art facilities ensuring a comfortable and secure living environment for residents. The real estate market in Pokhran Road 2 has witnessed steady growth in recent years, making it an attractive investment option. If you are looking for your dream home or a sound investment opportunity, Pokhran Road 2 in Thane should be at the top of your list.

chekcbox
I am interested in Home Loans

Recent Articles in Mumbai

How Will The Navi Mumbai Metro Route Impact The Real...

By Shruti Bagwe

Navi Mumbai

How Will The Navi Mumbai Metro Route Impact The Real...

Last updated on Mar 2026

Stamp Duty and Registration Charges in Navi Mumbai i...

By Pushkar Dake

Navi Mumbai

Stamp Duty and Registration Charges in Navi Mumbai i...

Last updated on Feb 2026

Ulwe Coastal Road: Distance, Route & Latest Updates ...

By Shruti Bagwe

Navi Mumbai

Ulwe Coastal Road: Distance, Route & Latest Updates ...

Last updated on Feb 2026