Last updated : Oct 2 2025





| Type | Carpet Area | Price | Floorplan | Room sizes | |
|---|---|---|---|---|---|
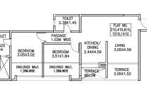
| 606 Sq.ft | ₹ 46.27 L | [ View Now ] | [ View Now ] | ||
![]() | |||||
Kumar Pebble Park, situated in Hadapsar, Pune East, presents 2 BHK flats that offer well-ventilated apartments filled with abundant natural sunlight. Residents of Kumar Pebble Park can also indulge in a wide array of amenities, including a Multi-Purpose Hall with a Party Area, Swimming Pool, Landscaped Gardens, Children's Play Areas, Library, and more. Hadapsar, located in Pune East, is a thriving town with a significant industrial sector and has evolved into the most densely populated & developed area in the Pune District. Presently, there is an ongoing development project for the Hadapsar railway station, which is expected to be completed by March 2020 under the central railway. Hadapsar is strategically positioned along the Mumbai-Hyderabad National Highway, also recognized as NH65, connecting Pune and Solapur, making it a pivotal transportation hub. Overall, Kumar Pebble Park makes you spend a weekend having fun at your home.
















Click to download Kumar Pebble Park Brochure.
Explore nearby areas around your dream project
The price depends on the configuration; please check projects’s Floor Plans & Room Sizing of Kumar Pebble Park
Yes, the Kumar Pebble Park is RERA-registered with the number P52100026151.
The carpet area ranges from 606 sq.ft. to 606 sq.ft., depending on the unit type.
Yes, home loan assistance is available. Please click here
The project is located on Satav Nagar, Hadapsar. The full address of Kumar Pebble Park is Kumar Pebble Park, Sr No. 55, Nr Jspm College, Satav Nagar, Hadapsar, Pune, Maharashtra 411028
The pincode of Kumar Pebble Park is 411028
Yes, you can schedule a site visit by contacting the developer or HomeBazaar.
The expected possession date of Kumar Pebble Park is 02-2026.
The project offers 2 BHK apartments.
The project is developed by Kumar Properties.
Yes, the buildings are designed to be earthquake-resistant.
Located in the eastern part of Pune, Maharashtra, Hadapsar is a bustling locality that offers a perfect blend of residential, commercial, and industrial spaces. One of the key highlights of Hadapsar is its strategic location. Situated on the Pune-Solapur Highway, it provides seamless connectivity to major parts of the city and beyond. The presence of various transportation options, including buses, auto-rickshaws, and taxis, ensures easy accessibility for daily commuting. Moreover, the upcoming metro line is set to further enhance the connectivity of Hadapsar with other prominent areas of Pune. When it comes to entertainment and shopping, Hadapsar leaves no stone unturned. The locality is dotted with shopping malls like Amanora Mall and Seasons Mall, multiplexes, and entertainment centres, offering a wide range of options for leisure activities and retail therapy. The real estate landscape in Pune is incredibly diverse, providing an extensive selection of properties in Hadapsar that cater to various budgets and preferences. Whether you are searching for a comfortable residential space or a promising business location, properties in Pune offer a dynamic and fulfilling lifestyle. With diverse property options, a thriving job market, and incredible growth prospects, Hadapsar continue to capture the interest of individuals looking for a vibrant and prosperous place to call home.